Сканди Валдай 130: каркасный дом с большой террасой
- Котельная на основе систем Evan и Valtec
- Отопление теплые полы Valtec и Pro Aqua
- Радиаторы / Умные конвектора
- Водоснабжение - коллектора и сшитый полиэтилен Valtec
- Вентиляция приток Norvind, отток Vilpe/Krovent
- Канализация Ostendorf
- Электроснабжение - продуманная и безопасная система для частного дома
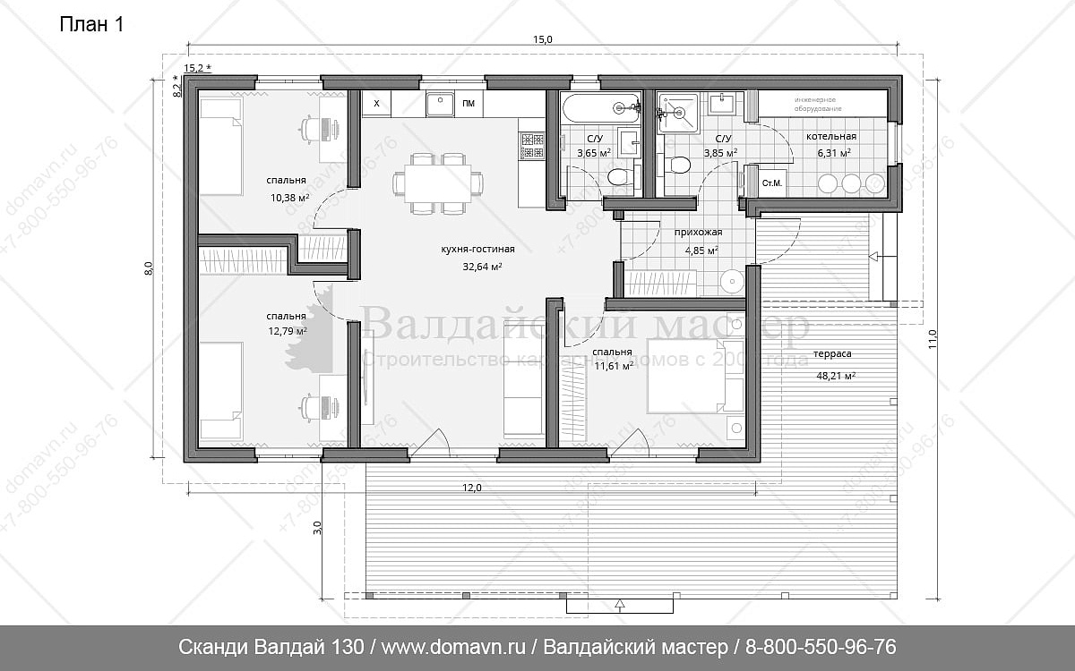
Большой, красивый и надежный, классический и аскетичный скандинавский дом – все это Сканди Валдай 130. Одноэтажный каркасный дом рассчитанный на постоянное проживание семьи из 4-5 человек. Проект включает в себя четыре схожие планировки с большой кухней гостиной, тремя раздельными комнатами, двумя санузлами и котельной.
Валдай 130 - продуманный до мелочей одноэтажный дом с большой террасой и богатыми комплектациями.
На сайте доступен подробный отчет о строительстве дома с увеличенной крытой террасой - подробнее.
Для подробного изучения нажмите на комплектацию либо отправьте заявку на получение описания и мы пришлем Вам полноценное предложение на проект. Больше идей для загородного строительства на нашем Youtube канале.
- Дом можно приобрести в ипотеку;
- Бесплатная доставка до Москвы и Санкт-Петербурга МКАД/КАД + 100 км;
- Конструктивом камерной сушки ;
- Классический каркас с укосами и ригелями, возведение по рабочему проекту;
- Пленки Finka или аналог;
- Поэтапная оплата на протяжении всей работы с домом;
- Отсутствие скрытых платежей. В комплектацию включены необходимые материалы и работа согласно комплектации дома, доставка, разгрузка, проживание бригады, утилизация мусора в ваш контейнер;
- Ежедневные онлайн отчеты о строительстве - фото + видео;
- Гарантия 5 лет;
- Фундамент: Стоимость определяется после геологии или пробного бурения;
- Конструктив: Конструктив и отделка камерной сушки, строганный с противопожарными фасками;
- Защита от грызунов: Оцинкованная сетка в вентзазор ;
- Антисептирование: весь конструктив пропитан методом погружения на производстве;
- Сечение основного конструктива мм: 50х200, 50х150, 50х100 мм (размер до строжки) ;
- Утепление: Комплектация лайт включает перекрестное утепление дома снаружи на 50мм, далее утепление до 200/250мм делает Заказчик;
- Вентиляция: Вентиляция выполняется силами Заказчика;
- Ветровлагозащитные и пароизоляционные пленки: Finka или аналог;
- Кровля: металлочерепица GrandLine 0.5 мм цвет черный или темно серый;
- Снегозадержатели и водосточная система: отсутствуют;
- Отделка: Скандинавская фасадная доска / имитация бруса с тонкопиленной поверхностью;
- Покраска: Не входит в стоимость и зависит от выбранного типа продукции компании Тиккурила и цветового решения в доме;
- Внутренняя отделка: Отсутствует;
- Окна и двери: Отсутствуют;
- Изменения проекта: возможна как полная, так и частичная переработка проекта и комплектации;
- Дом можно приобрести в ипотеку;
- Бесплатная доставка до Москвы и Санкт-Петербурга МКАД/КАД + 100 км;
- Богатая комплектация с утеплением плитами РОКВУЛ до 300 мм, конструктивом камерной сушки и вентиляцией;
- Классический каркас с укосами и ригелями, возведение по рабочему проекту;
- Пленки и клейки ленты Finka или аналог. Разделение контуров пароизоляции;
- Поэтапная оплата на протяжении всей работы с домом;
- Отсутствие скрытых платежей. В комплектацию включены необходимые материалы и работа согласно комплектации дома, доставка, разгрузка, проживание бригады, утилизация мусора в ваш контейнер;
- Ежедневные онлайн отчеты о строительстве - фото + видео;
- Гарантия 10 лет;
- Альбом планировочных решений при заказе дома с коммуникациями;
- Фундамент: Стоимость определяется после геологии или пробного бурения;
- Конструктив: Конструктив и отделка камерной сушки, строганный с противопожарными фасками;
- Защита от грызунов: Оцинкованная сетка в вентзазор;
- Антисептирование: весь конструктив пропитан методом погружения на производстве;
- Сечение основного конструктива мм: 50х200, 50х150, 50х100 мм (размер до строжки);
- Утепление плитами РОКВУЛ: Пол 250мм(+обрешетка под утепление 50мм), Стены 200мм, Потолок 300мм;
- Вентиляция: На кровле трубы KROVENT или анлог, в комнатах проходки для установки приточных клапанов Norwind или других моделей по запросу;
- Ветровлагозащитные и пароизоляционные пленки, клейкие ленты: Finka или аналог;
- Кровля: металлочерепица GrandLine 0.5 мм цвет черный или темно серый;
- Снегозадержатели и водосточная система: GrandLine в цвет кровли;
- Отделка: Скандинавская фасадная доска / имитация бруса с тонкопиленной поверхностью;
- Покраска Tikkurila Ultra: Фасад окрашен в базовые цвета ВМ - черный, белый, красный, синий, серый и др рекомендуемые базовые цвета Валдайского Мастера;
- Внутренняя отделка: Отсустствует;
- Окна: Белый двухкамерный ПВХ профиль Veka Softline 70 мм с энергосбережением;
- Двери входные: Белый двухкамерный ПВХ профиль с энергосбережением, возможна замена на Финские двери или аналог(стоимость по запросу);
- Изменения проекта: возможна как полная, так и частичная переработка проекта и комплектации;
- Толщина наружных стен: 270-300 мм с отделкой;
- Дом можно приобрести в ипотеку;
- Бесплатная доставка до Москвы и Санкт-Петербурга МКАД/КАД + 100 км;
- Богатая комплектация с утеплением плитами РОКВУЛ до 300 мм, конструктивом камерной сушки и вентиляцией;
- Классический каркас с укосами и ригелями, возведение по рабочему проекту;
- Пленки и клейки ленты Finka или аналог. Разделение контуров пароизоляции;
- Поэтапная оплата на протяжении всей работы с домом;
- Отсутствие скрытых платежей. В комплектацию включены необходимые материалы и работа согласно комплектации дома, доставка, разгрузка, проживание бригады, утилизация мусора в ваш контейнер;
- Ежедневные онлайн отчеты о строительстве - фото + видео;
- Гарантия 10 лет;
- Альбом планировочных решений при заказе дома с коммуникациями;
- Фундамент: Стоимость определяется после геологии или пробного бурения;
- Конструктив: Конструктив и отделка камерной сушки, строганный с противопожарными фасками;
- Защита от грызунов: Оцинкованная сетка в вентзазор;
- Антисептирование: весь конструктив пропитан методом погружения на производстве;
- Сечение основного конструктива мм: 50х200, 50х150, 50х100 мм (размер до строжки) ;
- Утепление плитами РОКВУЛ: Пол 300мм, Стены 200мм, Потолок 300мм;
- Вентиляция: Приточные клапан Norwind в комнатах, на кровле трубы KROVENT или анлог;
- Ветровлагозащитные и пароизоляционные пленки, клейкие ленты: Finka или аналог;
- Кровля: металлочерепица GrandLine 0.5 мм цвет черный или темно серый;
- Снегозадержатели и водосточная система: GrandLine в цвет кровли;
- Отделка: Скандинавская фасадная доска / имитация бруса с тонкопиленной поверхностью;
- Покраска Tikkurila Ultra: Фасад окрашен в базовые цвета ВМ - черный, белый, красный, синий, серый и др рекомендуемые базовые цвета Валдайского Мастера;
- Внутренняя отделка: пол Quick Deck 16мм, стены имитация бруса, отделка СУ и котельной отсутствует;
- Окна: Белый двухкамерный ПВХ профиль Veka Softline 70 мм с энергосбережением;
- Двери входные: Белый двухкамерный ПВХ профиль с энергосбережением, возможна замена на Финские двери или аналог(стоимость по запросу);
- Изменения проекта: возможна как полная, так и частичная переработка проекта и комплектации;
- Толщина наружных стены: 270-300 мм с отделкой;
























