Сканди Клин - Недорогой одноэтажный дом в каркасном исполнении:
- Котельная на основе систем Evan и Valtec
- Отопление теплые полы Valtec и Pro Aqua
- Радиаторы / Умные конвектора
- Водоснабжение - коллектора и сшитый полиэтилен Valtec
- Вентиляция приток Norvind, отток Vilpe/Krovent
- Канализация Ostendorf
- Электроснабжение - продуманная и безопасная система для частного дома
Продолжаем серию недорогих каркасных домов для круглогодичного проживания, созданных нами с нуля. Лучший форм фактор для жизни – одноэтажный загородный дом с большой террасой и обширным остеклением. Все это Сканди Клин – город или же чистый Сканди, решать Вам.
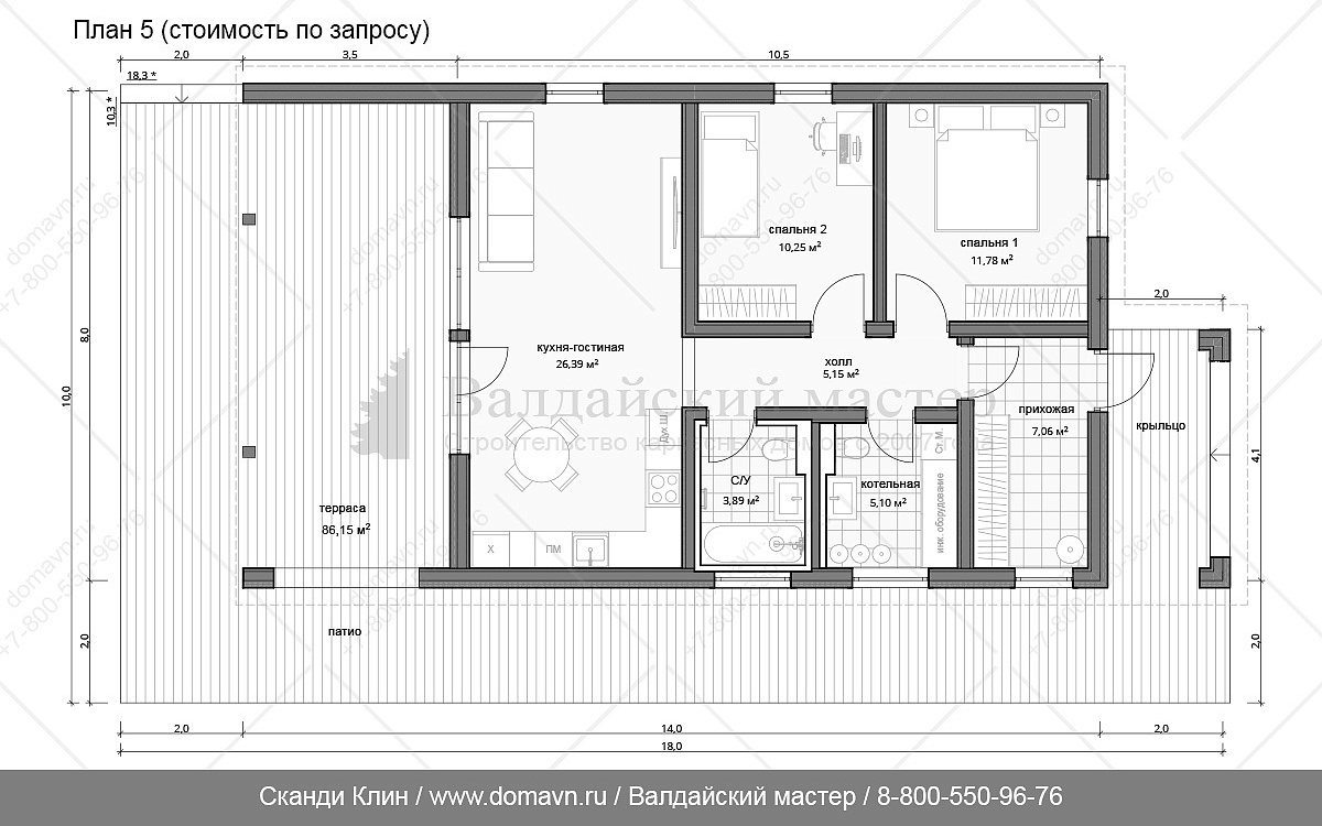
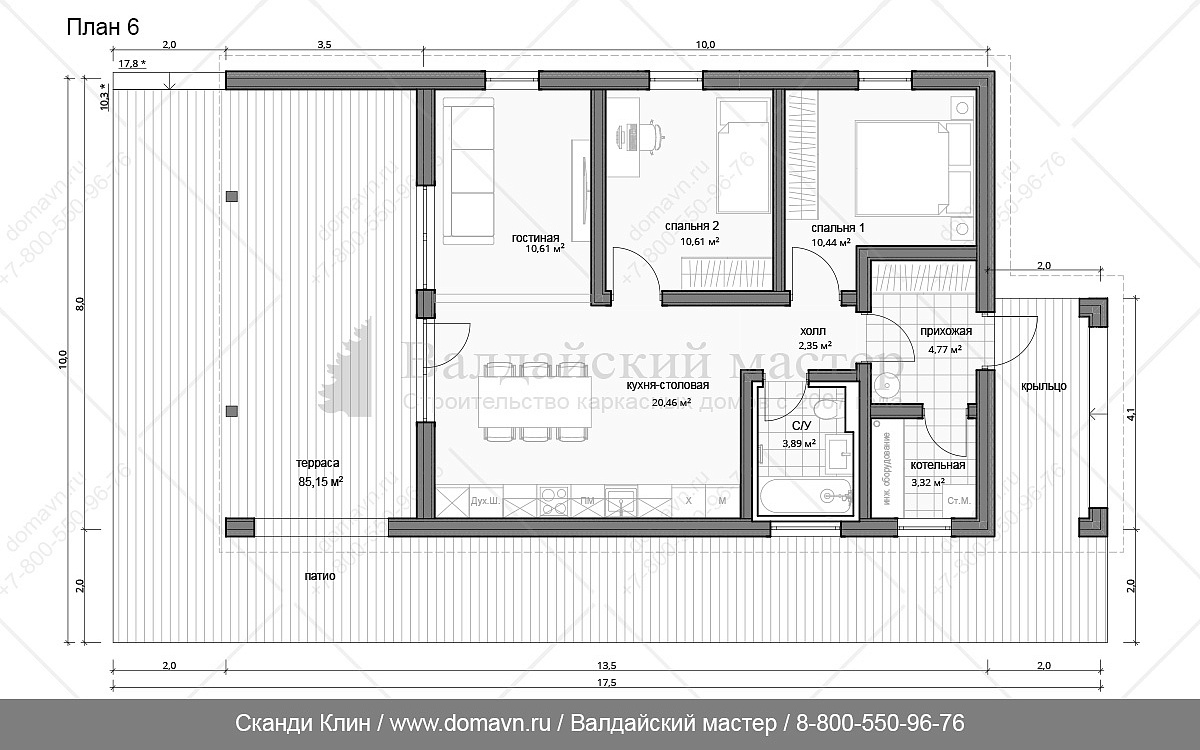
Каркасный проект отлично подойдет для молодой семьи и для людей ценящих не стандартные решения и оптимальную планировку, не смотря на небольшие габариты и всего один этаж, мы смогли включить в проект большую гостиную столовую более 30 кв.м., 2 небольшие комнаты 13 и 10 кв.м., техническое помещение и ванную комнату по 5 квадратов, террасу под 19 метров.
Не всем нравятся открытые террасы, многие писали нам о том что им будет не удобно убирать снег зимой, а мы за здоровый образ жизни, красоту и элегантность - поверьте вы не пожалеете об открытой террасе. При наличии террасы вы никогда не будете строить беседку, или захламлять участок не нужными строениями, на террасе вы всегда сможете сделать отличный гриль, выпить утренний кофе или встретить закат, опять же для непримиримых борцов с террасами – мы можем сделать круговое остекление, но увы это не экономичный вариант.
Проект выполнен в каркасном исполнении из северной Вологодской доски, заготовленной на нашем производстве и с любовью высушенной и отстроганной нашими специалистами. Отделка проекта комбинированная – имитация бруса вертикально по бокам дома, под окнами и на фасадах отделка идет из сухой обрезной доски «елочкой».
Видео обзор проекта доступен на нашем YouTube канале.
- Дом можно приобрести в ипотеку;
- Бесплатная доставка до Москвы и Санкт-Петербурга МКАД/КАД + 100 км;
- Конструктивом камерной сушки ;
- Классический каркас с укосами и ригелями, возведение по рабочему проекту;
- Пленки Finka или аналог;
- Поэтапная оплата на протяжении всей работы с домом;
- Отсутствие скрытых платежей. В комплектацию включены необходимые материалы и работа согласно комплектации дома, доставка, разгрузка, проживание бригады, утилизация мусора в ваш контейнер;
- Ежедневные онлайн отчеты о строительстве - фото + видео;
- Гарантия 5 лет;
- Фундамент: Стоимость определяется после геологии или пробного бурения;
- Конструктив: Конструктив и отделка камерной сушки, строганный с противопожарными фасками;
- Защита от грызунов: Оцинкованная сетка в вентзазор ;
- Антисептирование: весь конструктив пропитан методом погружения на производстве;
- Сечение основного конструктива мм: 50х200, 50х150, 50х100 мм (размер до строжки) ;
- Утепление: Комплектация лайт включает перекрестное утепление дома снаружи на 50мм, далее утепление до 200/250мм делает Заказчик;
- Вентиляция: Вентиляция выполняется силами Заказчика;
- Ветровлагозащитные и пароизоляционные пленки: Finka или аналог;
- Кровля: металлочерепица GrandLine 0.5 мм цвет черный или темно серый;
- Снегозадержатели и водосточная система: отсутствуют;
- Отделка: Скандинавская фасадная доска / имитация бруса с тонкопиленной поверхностью;
- Покраска: Не входит в стоимость и зависит от выбранного типа продукции компании Тиккурила и цветового решения в доме;
- Внутренняя отделка: Отсутствует;
- Окна и двери: Отсутствуют;
- Изменения проекта: возможна как полная, так и частичная переработка проекта и комплектации;
- Дом можно приобрести в ипотеку;
- Бесплатная доставка до Москвы и Санкт-Петербурга МКАД/КАД + 100 км;
- Богатая комплектация с утеплением плитами РОКВУЛ до 300 мм, конструктивом камерной сушки и вентиляцией;
- Классический каркас с укосами и ригелями, возведение по рабочему проекту;
- Пленки и клейки ленты Finka или аналог. Разделение контуров пароизоляции;
- Поэтапная оплата на протяжении всей работы с домом;
- Отсутствие скрытых платежей. В комплектацию включены необходимые материалы и работа согласно комплектации дома, доставка, разгрузка, проживание бригады, утилизация мусора в ваш контейнер;
- Ежедневные онлайн отчеты о строительстве - фото + видео;
- Гарантия 10 лет;
- Альбом планировочных решений при заказе дома с коммуникациями;
- Фундамент: Стоимость определяется после геологии или пробного бурения;
- Конструктив: Конструктив и отделка камерной сушки, строганный с противопожарными фасками;
- Защита от грызунов: Оцинкованная сетка в вентзазор;
- Антисептирование: весь конструктив пропитан методом погружения на производстве;
- Сечение основного конструктива мм: 50х200, 50х150, 50х100 мм (размер до строжки);
- Утепление плитами РОКВУЛ: Пол 250мм(+обрешетка под утепление 50мм), Стены 200мм, Потолок 300мм;
- Вентиляция: На кровле трубы KROVENT или анлог, в комнатах проходки для установки приточных клапанов Norwind или других моделей по запросу;
- Ветровлагозащитные и пароизоляционные пленки, клейкие ленты: Finka или аналог;
- Кровля: металлочерепица GrandLine 0.5 мм цвет черный или темно серый;
- Снегозадержатели и водосточная система: GrandLine в цвет кровли;
- Отделка: Скандинавская фасадная доска / имитация бруса с тонкопиленной поверхностью;
- Покраска Tikkurila Ultra: Фасад окрашен в базовые цвета ВМ - черный, белый, красный, синий, серый и др рекомендуемые базовые цвета Валдайского Мастера;
- Внутренняя отделка: Отсустствует;
- Окна: Белый двухкамерный ПВХ профиль Veka Softline 70 мм с энергосбережением;
- Двери входные: Белый двухкамерный ПВХ профиль с энергосбережением, возможна замена на Финские двери или аналог(стоимость по запросу);
- Изменения проекта: возможна как полная, так и частичная переработка проекта и комплектации;
- Толщина наружных стен: 270-300 мм с отделкой;
- Дом можно приобрести в ипотеку;
- Бесплатная доставка до Москвы и Санкт-Петербурга МКАД/КАД + 100 км;
- Богатая комплектация с утеплением плитами РОКВУЛ до 300 мм, конструктивом камерной сушки и вентиляцией;
- Классический каркас с укосами и ригелями, возведение по рабочему проекту;
- Пленки и клейки ленты Finka или аналог. Разделение контуров пароизоляции;
- Поэтапная оплата на протяжении всей работы с домом;
- Отсутствие скрытых платежей. В комплектацию включены необходимые материалы и работа согласно комплектации дома, доставка, разгрузка, проживание бригады, утилизация мусора в ваш контейнер;
- Ежедневные онлайн отчеты о строительстве - фото + видео;
- Гарантия 10 лет;
- Альбом планировочных решений при заказе дома с коммуникациями;
- Фундамент: Стоимость определяется после геологии или пробного бурения;
- Конструктив: Конструктив и отделка камерной сушки, строганный с противопожарными фасками;
- Защита от грызунов: Оцинкованная сетка в вентзазор;
- Антисептирование: весь конструктив пропитан методом погружения на производстве;
- Сечение основного конструктива мм: 50х200, 50х150, 50х100 мм (размер до строжки) ;
- Утепление плитами РОКВУЛ: Пол 300мм, Стены 200мм, Потолок 300мм;
- Вентиляция: Приточные клапан Norwind в комнатах, на кровле трубы KROVENT или анлог;
- Ветровлагозащитные и пароизоляционные пленки, клейкие ленты: Finka или аналог;
- Кровля: металлочерепица GrandLine 0.5 мм цвет черный или темно серый;
- Снегозадержатели и водосточная система: GrandLine в цвет кровли;
- Отделка: Скандинавская фасадная доска / имитация бруса с тонкопиленной поверхностью;
- Покраска Tikkurila Ultra: Фасад окрашен в базовые цвета ВМ - черный, белый, красный, синий, серый и др рекомендуемые базовые цвета Валдайского Мастера;
- Внутренняя отделка: пол Quick Deck 16мм, стены имитация бруса, отделка СУ и котельной отсутствует;
- Окна: Белый двухкамерный ПВХ профиль Veka Softline 70 мм с энергосбережением;
- Двери входные: Белый двухкамерный ПВХ профиль с энергосбережением, возможна замена на Финские двери или аналог(стоимость по запросу);
- Изменения проекта: возможна как полная, так и частичная переработка проекта и комплектации;
- Толщина наружных стены: 270-300 мм с отделкой;































